Teren cu AUTORIZATIE DE CONSTRUIRE,1263 MP, situat in cartierul Gruia!
Descriere teren
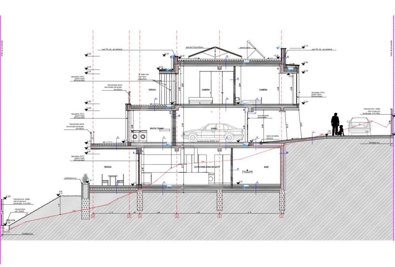
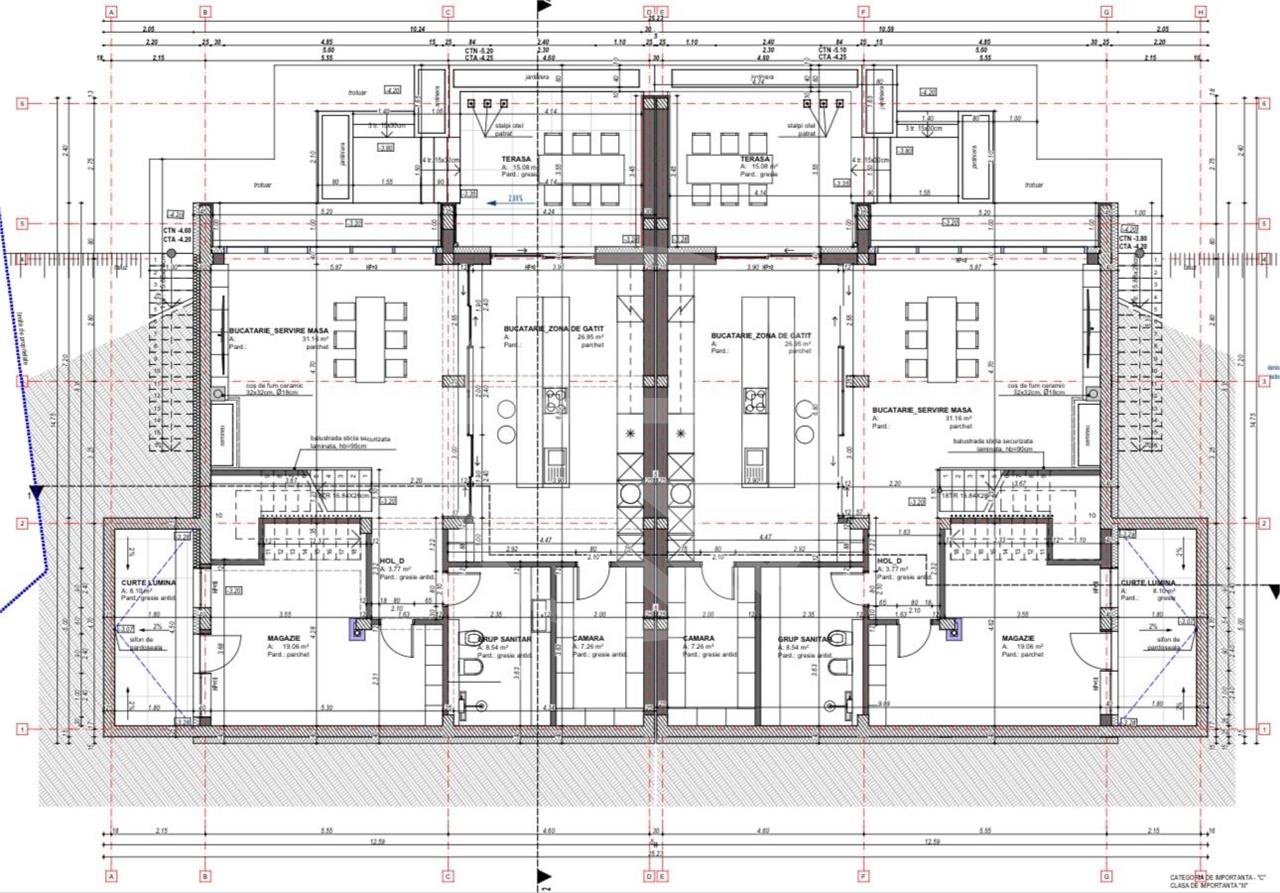
Rower Estate va propune Teren de vânzare cu AUTORIZATIE DE CONSTRUIRE – Proiect aprobat pentru Locuinta semicolectiva S+P+1 cu două unități locative C1/C2
Suprafață teren: 1263 mp
Documentație completă: AUTORIZATIE DE CONSTRUIRE !
Proiect inclus.
Regim de înălțime: (Subsol + Parter + Etaj)
Ideal pentru construcția imediată – se vinde cu proiect arhitectural gata de implementare!
Zonă liniștită, cu potențial rezidențial ridicat – perfect pentru locuință proprie sau investiție.
ID intern: ROW4328
ID Oferta: ROW4328
| Pret Vanzare: | € 650,000 |
|---|---|
| Zona: | Gruia |
| Suprafata: | 1263 mp |
| Reper: | VANTULUI |
| Fronturi: | - |
| Localizare: | Intravilan |
| Deschidere: | - ml |
| Tip teren: | Construibil |
| Acces teren: | Auto, Pietonal |
| Strazi: | Asfaltate |
| Regim Inaltime: | SUBSOL+PARTER+ ETAJ |
| Pretabil: | Case / vile |
| Actualizat la: | 22 Ianuarie 2026 |
| Numar de afisari: | 16 |
Caracteristici generale
- Distanta utilitati: Pe Teren
- Utilitati: Apa, Canalizare, Curent, Gaz
- Alte caracteristici: Oportunitate de investitie








