Casa Tip Duplex S+P+ET.+ET Retras situata in cartierul Gruia!
Descriere casa vila
Rower Estate va propune spre vanzare Casa tip Duplex cu un regim de inaltime S+P+ET + ET. Retras.
Casa este situata in cartierul Gruia, avand front la doua strazi beneficiaza de o PANORAMA 360° asupra orasului.
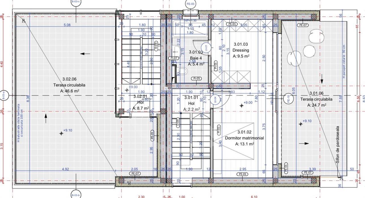
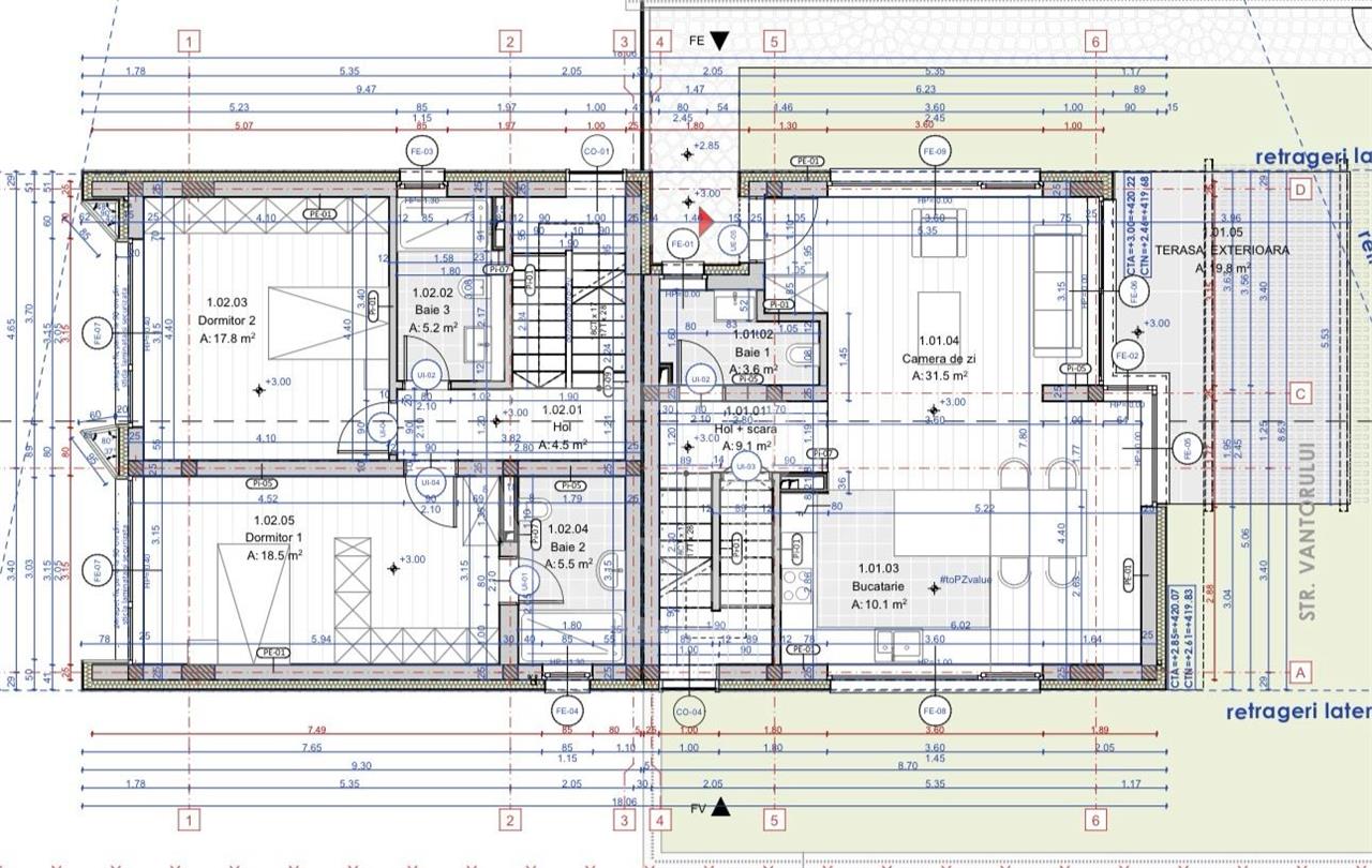
Terenul aferent fiecarei unitati este 250 mp iar suprafata utila a casei este de de 161 mp + 70 mp de terasa fiind compartimentata astfel :
Beneficiaza de Centrala Termica pe Gaz ,Incalzire in pardoseala in toata locuinta. La exterior casa va fi izolata cu Vata Bazaltica de 15 cm Knauf ,avand un coeficient termic 00.34.Se ofera spre vanzare pregatita pentru finisaje la stadiul de semifinisat, cu sapa autonivelanta, peretii gletuiti si instalatile trase la pozitie.La interior sistem recuperare caldura iar gradina se ofera amenajata cu dale de pavaj, imprejmuita cu gard ,fundatie de beton si grilaj metalic . Beneficiaza de 2 locuri de parcare .Panorama superba asupra Clujului . Modalitati de plata: Cash sau Credit Imobiliar .
ID Oferta: ROW4334
ID Oferta: ROW4334
| Pret Vanzare: | € 650,000 |
|---|---|
| Numar Camere: | 4 |
| Zona: | Gruia |
| Suprafata utila: | 161 mp |
| Reper: | GRUIA |
| Strazi: | Asfaltate, Pietruite |
| Numar Dormitoare: | 3 |
| Tip casa: | Duplex |
| Numar Bai: | 3 |
| Regim Inaltime: | 2 |
| Numar Bucatarii: | 1 |
| An Constructie: | 2026 |
| Suprafata Teren: | 250 mp |
| Acces: | Auto, Pietonal |
| Destinatie: | Locuinta |
| Actualizat la: | 30 Ianuarie 2026 |
| Numar de afisari: | 14 |
Caracteristici generale
- Stadiu: In constructie
- Ferestre: Term. PVC
- Structura: Caramida
- Pereti: Glet
- Materiale: Beton Armat, Caramida Porotherm
- Acoperis: Terasa
- Locuri Parcare: 2/in curte
- Curte: Foisor, Gradina, Gratar, Pavata
- Incalzire: Centrala Termica, Incalzire pardoseala
- Terasa: 2
- Bucatarie: Da
- Utilitati: Apa, Canalizare, Curent, Gaz, Internet






