Teren cu Autorizatie de Construire situat in cartierul Dambul Rotund!
Descriere teren
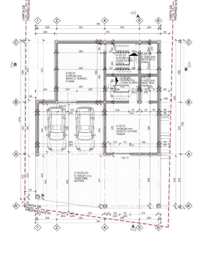
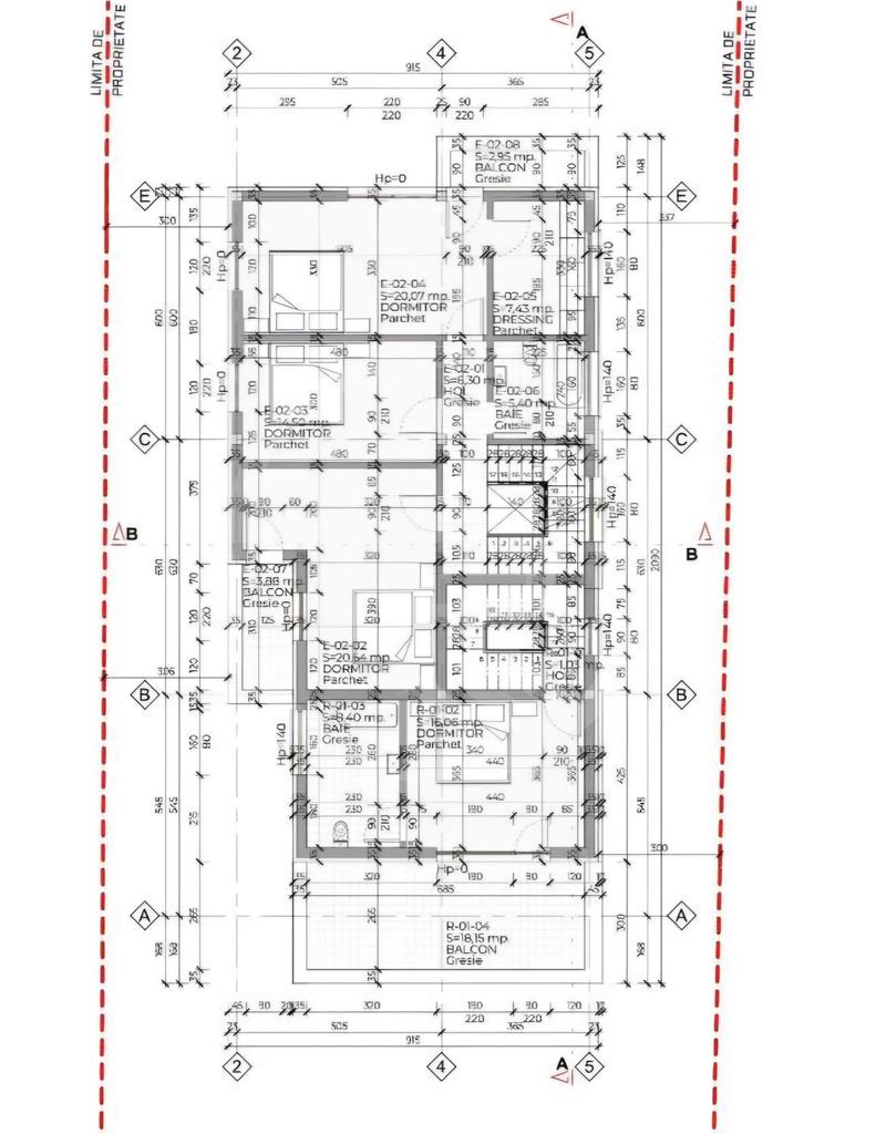
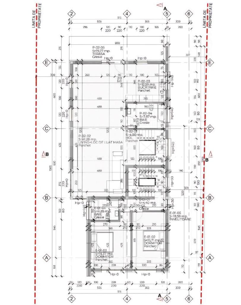
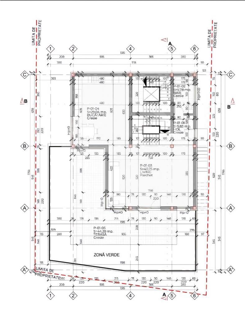
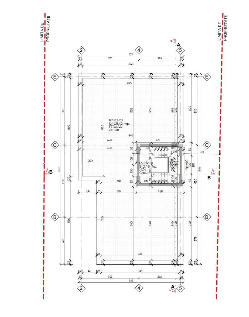
Rower Estate ofera spre vanzare un teren intravilan situat in cartierul Dambul Rotund, Cluj-Napoca, cu autorizatie de construire pentru o locuinta compusa din doua unitati locative. Proprietatea dispune de un regim de inaltime Subsol + Parter + Etaj + Etaj retras, iar suprafata totala a terenului este de 630 mp. Terenul este complet conectat la toate utilitatile necesare si se afla intr-o zona deosebita, caracterizata prin liniste si o panorama impresionanta, oferind un mediu ideal pentru dezvoltarea unui proiect rezidential modern.
ID intern: ROW3945
ID Oferta: ROW3945
| Pret Vanzare: | € 269,000 |
|---|---|
| Zona: | Dambul Rotund |
| Suprafata: | 630 mp |
| Reper: | Cartierul Dambul Round |
| Fronturi: | 1 |
| Localizare: | Intravilan |
| Deschidere: | 12 ml |
| Tip teren: | Construibil |
| Acces teren: | Auto, Pietonal |
| Strazi: | Asfaltate |
| Regim Inaltime: | S+P+E+R |
| Pretabil: | Case / vile |
| Actualizat la: | 27 Octombrie 2025 |
| Numar de afisari: | 636 |
Caracteristici generale
- POT: 35%
- CUT: 0.90
- Distanta utilitati: Pe Teren
- Utilitati: Apa, Canalizare, CATV, Curent, Gaz, Internet
- Alte caracteristici: Iluminat stradal, Teren imprejmuit








